[摘要] 近日发布批前公示,规划内容含住宅、公用事业用房及经济发展用房等,项目总建筑面积达94352.61㎡。
青岛日报社/观海新闻7月2日讯 观海新闻记者于胶州市获悉,胶州市九龙街道办事处刘家岭匙家庄棚户区改造工程近日发布批前公示,规划内容含住宅、公用事业用房及经济发展用房等,项目总建筑面积达94352.61㎡。

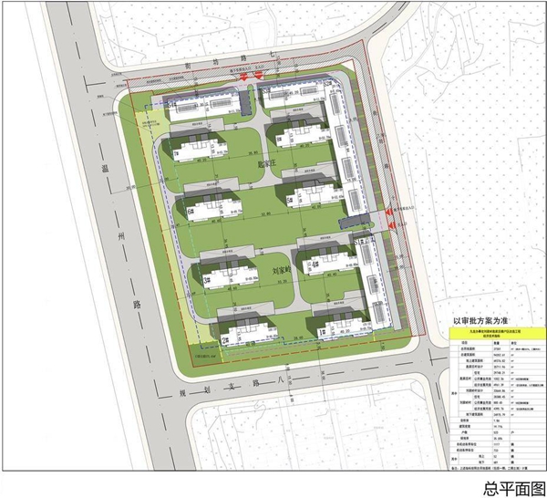
公示显示,本项目位于胶州市九龙街道办事处温州路东侧、规划支路八北侧、街坊路十西侧、街坊路七南侧。建设单位为青岛中晟国恒房地产开发有限公司。

项目总用地面积37301㎡,其中一期33376㎡,二期3925㎡,总建筑面积为94352.61㎡,地上建筑面积69376.82㎡,地下建筑面积24975.79㎡。总户数为533户,容积率1.86,绿地率达到35.5%。规划非机动车停车位1117个,机动车停车位733个(地上52个,地下681个)。
其中,匙家庄村含住宅面积29748.21㎡,公用事业用房(社区服务配套)1002.36㎡,经济发展用房(含沿街商业、人行通道及公厕)4961.39㎡,合计35711.96㎡。

刘家岭村住宅面积28388.45㎡,公用事业用房(社区服务配套)880.65㎡,经济发展用房(含沿街商业及公厕)4395.76㎡,合计33664.86㎡。(青岛日报/观海新闻记者 罗震 文/图)
