[摘要] 近日,山钢在青岛蓝谷新盘山钢泓明府项目规划发布,同时项目施工开始招标。
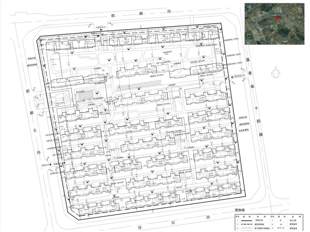
近日,山钢在青岛蓝谷新盘山钢泓明府项目规划发布,同时项目施工开始招标。项目位于青岛蓝谷麒麟路以南、麒麟东路以东、规划路以西、规划路以北,建设住宅、配套商业。容积率1.5,建筑密度30%,建筑高度27米,建筑用地面积58808㎡,总建面119151㎡,停车位906个。根据规划,该项目拟建设15栋4F、6栋6F及8栋9F。

据CRIC系统显示,今年3月2日,青岛蓝谷温泉板块恒大悦珑台南侧8.8万㎡商住地成交,青岛山钢产城投资开发有限公司(山钢控股)竞得,成交楼板价2959元/㎡,成交总价2.61亿。这是山钢首次进入即墨,也是在青岛落地的第五个项目。




