[摘要] 日前,青岛市规划局黄岛分局发布了黄岛区“富春山庄”项目规划方案。根据最新规划显示,西海岸长江路商圈内将再添一处商住综合社区,总建筑面积26680.89㎡。
日前,青岛市规划局黄岛分局发布了黄岛区“富春山庄”项目规划方案。根据最新规划显示,西海岸长江路商圈内将再添一处商住综合社区,总建筑面积26680.89㎡。

实景合成图
西海岸长江路商圈将再添商住综合社区 命名富春山庄
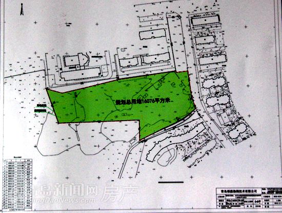
根据最新规划显示,该项目位于黄岛区富春江路以南、太行山路以西,用地面积为16076㎡,总建筑面积26680.89㎡,项目定名为富春山庄。地上建筑面积19291㎡,其中多层住宅18209.61㎡,服务配套1081.39㎡;地下建筑面积7389.89㎡,其中住宅半地下楼梯间112.84㎡,储藏面积2371.25㎡,车库层面积4905.8㎡。规划户数191户,项目整体容积率1.2,绿地率35.05%,建筑密度24.8%。配建地下停车位60个,地上停车位102个。

现状地形图
根据规划显示,该项目设计将综合考虑采光、通风、消防、防灾、管线埋设和视觉卫生等各项要求,充分考虑与周边地块、地形、城市空间的关系,借助山体景观资源,在满足城市道路退线要求的情况下,进行山体景观资源配置。在地块中心将打造景观节点,满足居住人群的活动要求,提高居住品质。


