[摘要] 4月7日,记者从青岛市自然资源和规划局获悉,海尔大云谷项目市北地块规划方案已进入批前公示阶段。据悉,该项目总占地面积约13公顷
4月7日,记者从青岛市自然资源和规划局获悉,海尔大云谷项目市北地块规划方案已进入批前公示阶段。据悉,该项目总占地面积约13公顷,拟打造商务休闲组团、文化康养组团和高端居住组团的智能化社区型综合体。



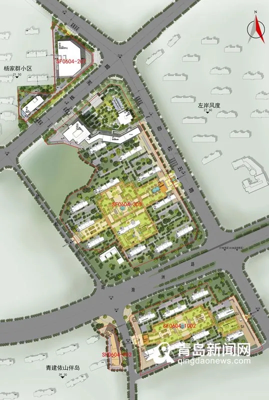
根据规划内容,该项目位于市北区劲松三路、滁州路两侧,劲松五路以西,占地面积约13公顷,整片项目的建设内容为住宅、办公、文化、体育、养老、商业等。
其中,SF0604-207地块用地面积11697.5平方米,总建筑面积31157平方米,拟建设体育中心和办公;SF0604-305地块用地面积74059平方米,总建筑面积360420.1平方米,拟建设住宅、办公、商业及配套;SF0604-1002地块用地面积34521.6平方米,总建筑面积180671.6平方米,拟建设住宅、养老公寓、商业及配套;SFO604-902地块用地面积2886.2平方米,总建筑面积5814.3平方米,拟建设街道综合文化站。
从规划内容可以看出,该项目业态丰富,拟打造商务休闲组团、文化康养组团和高端居住组团,形成功能齐全、景观生态宜人、注重人居体验的智能化社区型综合体。