[摘要] 22日,记者从市自然资源和规划局获悉,崂山东韩住宅项目(LS0804-011地块)规划及建筑方案批前公示。
22日,记者从市自然资源和规划局获悉,崂山东韩住宅项目(LS0804-011地块)规划及建筑方案批前公示,项目位于崂山区株洲路南、高荣路东、科苑纬一路北、规划二号路西,由青岛中植天平投资管理有限公司建设。
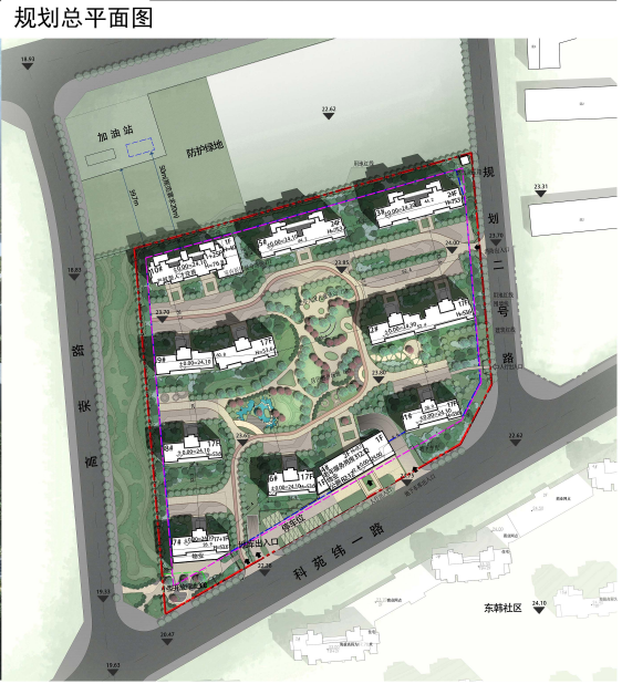
根据公示,东韩住宅项目(LS0804-011地块)位于青岛市崂山区株洲路片区,项目采用围合式布局,秉承品质人居的规划设计理念,打造舒适优美的中央景观大花园。项目地上规划住宅建筑8栋,产权型人才住房1栋,社区大堂1栋,小区共设置消防出入口、地下车库出入口各两处,局部两层地下车库,满足停车需求,项目以人车分流的艺术,打造安全舒适的生活环境,在保证业主活动安全、舒适的同时也将更多空间留给景观。小型开放绿地位于用地西南角,面积为300㎡。





