[摘要] 李沧区瑞金路7号甲地块的规划条件公示,时隔多年之后该地块终于有了该地块按工业地块出具规划条件,补办工业厂房规划许可,即将登上拍卖台寻找“新东家”。
【青岛新闻网房产讯】 新规划,青岛市瑞金路7号甲地块有消息了!根据青岛市规划局最新发布的李沧区瑞金路7号甲地块的规划条件公示显示,时隔多年之后,该地块终于可补办工业厂房规划许可,并将于不久将来登上拍卖台寻找“新东家”。不过这次招拍挂和以往不同,该地块是一个新建不久的厂区,要土地及土地附带的建筑物一并确定新用地单位,但受让方必须得发展创新企业。

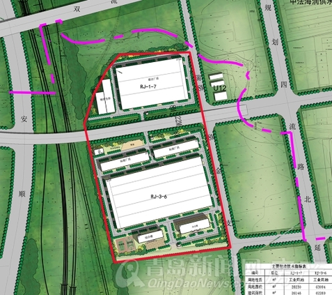
规划鸟瞰图

地块规划示意图
根据最新规划,瑞金路7号甲地块位于安顺路东、规划四流路北延线西,将分为南北地块——RJ-1-7和RJ-3-6地块,土地性质都是工业用地,占地面积分别为28230㎡、68049㎡,建筑面积分别是26146㎡、62269㎡。南北地块分别置于瑞金支路两侧,可通过设置高架的兴海路桥下空间进行通联。
从地图上看,瑞金路7号甲前身为海通桥有限公司,是生产轻、中、重型载货汽车车桥总成的专业生产企业,早在2005年,市政府规划此地为物流用地和市政设施用地,但是2007年,该地块上未拿到审批手续却先建起了厂区。紧接着2010年9月8日,海通桥有限公司从青岛市李沧区京口路90号擅自搬迁入李沧区瑞金路7号甲,期间地块手续仍不全。

地块现状卫星图
2014年,青岛市国土局对海通车桥进行了处罚,将地块新建筑物和其他设施没收移交给李沧区政府,但也导致无法确定用地权属单位,无法补办其他土地手续,经李沧区政府和土地储备中心研究决定向规划局申请规划条件,通过招拍挂的方式将土地及土地附带的建筑物一并确定用地单位,土地出让金上交市财政,地上建筑物拍卖后所有费用交给李沧区政府。下一步,李沧区政府组织受让企业,服从政府安排予以搬迁,按城市总规划设施,或转型升级发展创新企业。
据悉,瑞金路7号甲地块正位于李沧区楼山河南北两侧工业片区的重要板块之中,而楼山河板块也属于李沧区十三五规划中的重点板块——转型创业区。转型创业区主要以老企业搬迁改造及工业用地转型升级为主要内容,也是李沧四大功能区中涉及产业最丰富、涵盖高新科技、服务业、旅游业、生活商业、高档住宅等多领域。
目前转型创业区内各老企业正在按照计划逐步实施搬迁改造,其中包括青岛碱业老厂区、青钢老厂区都先后停产,现已完成搬迁、关停企业25家。值得一提的是,楼山板块将留住青汽等传统企业总部,加快吉林大学汽车研究院等项目建设,发展文化创意、科技研发等产业。毫无疑问,即将招拍挂的瑞金路7号甲也将会告别重型污染的老企业,拥抱发展文化创意科研产业,为李沧区全面转型升级提供基础,全面带动片区经济发展。
>>>8月20日,青岛新闻网免费看房车五线齐发,崂山婚房均价12000/㎡;市北均价12400/㎡;东李均价8000/㎡;高新区均价7000/㎡;黄岛均价8800/㎡,点击报名参加免费看房车。
【相关阅读】




