[摘要] 青岛市自然资源和规划局日前就佰才邦5G+工业互联网产业园二期(产业地块)规划方案进行社会公示。
青岛日报社/观海新闻9月21日讯 青岛市自然资源和规划局日前就佰才邦5G+工业互联网产业园二期(产业地块)规划方案进行社会公示。

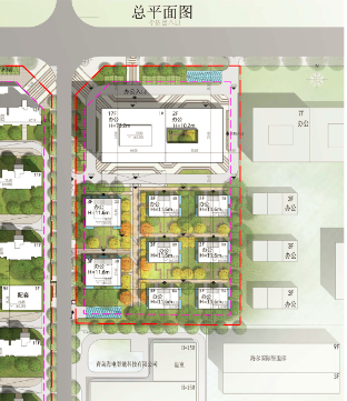
根据公示,项目位于城阳区城阳街道,祥阳路以北,周村路以东。设计内容为办公、科研。


总用地面积16354平方米,总建筑面积45926.20平方米,停车位393个。(青岛日报/观海新闻记者 周伟)
[摘要] 青岛市自然资源和规划局日前就佰才邦5G+工业互联网产业园二期(产业地块)规划方案进行社会公示。
青岛日报社/观海新闻9月21日讯 青岛市自然资源和规划局日前就佰才邦5G+工业互联网产业园二期(产业地块)规划方案进行社会公示。

根据公示,项目位于城阳区城阳街道,祥阳路以北,周村路以东。设计内容为办公、科研。


总用地面积16354平方米,总建筑面积45926.20平方米,停车位393个。(青岛日报/观海新闻记者 周伟)