[摘要] 市自然资源和规划局发布了《市北区三环线业及周边危旧房改造(渮翠阳光)项目建设工程规划变更批前公示》。此次变更涉及停车位、网点屋面、老年活动中心及体育活动站等。
青岛新闻网9月26日讯(记者 李倍)今天,市自然资源和规划局发布了《市北区三环线业及周边危旧房改造(渮翠阳光)项目建设工程规划变更批前公示》。此次变更涉及停车位、网点屋面、老年活动中心及体育活动站等。

据记者了解,早在2012年,青岛三环线业厂用地就发布了改造公示,规划方案显示,老厂搬迁过后将建设两栋新的住宅楼,除了商品房之外,还将配建105套廉租住房,曾一度被坊间称为市北区位置最好的廉租房。此后,该项目于2015年取得《建设工程规划许可证》,此后却因建设资金、房屋销售协议等历史遗留问题,施工进展较慢。如今,从最新规划上看,该地块仍将规划建设两栋住宅楼分别是23层及25层,楼底下有部分商业设施。
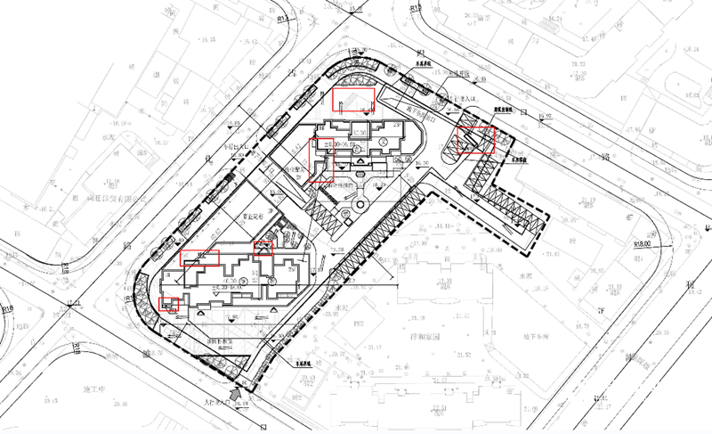
此次规划是根据施工图深化、人防设计需求及施工图审查意见等,对项目进行变更,此次变更不涉及建筑高度及建筑面积的变化。总图变更方面,根据施工图深化设计,调整1#楼2#楼网点轮廓。并取消6个地上车位;根据人防设计要求,增加出地面风井,相应取消风井处4辆相邻车位。

1#楼变更内容方面,一至二层及网点屋面增加车库风井,对应一层局部卫生间及立面相应调整;取消二层1-7至1-10轴交1-G轴房间。根据施工图审査要求,一层增加局部疏散门宽度,开敞楼梯间均调整为封闭楼梯间,补充二层1-4至1-7轴交1-B至W-D轴楼梯间,立面相应调整。根据施工图审査要求,取消一层1-16轴交1-G轴外窗及一层1-7至1-10轴交1-G轴外窗,调整部分外窗宽度,二层于每个出入口上方增加雨篷立面相应调整。
根据施工图审査要求,楼梯间需直接对外疏散,一层、二层1-21至W-8轴楼梯方向调整;1-2至1-4轴处轮廓调整,一层增加楼梯疏散外门,对应局部卫生间及立面相应调整。一层文化活动站北侧增加疏散门,对应立面相应调整。原二层部分老年活动中心与一层部分文化活动站对换,老年活动中心及文化活动站面积均不变。一层1-10轴交W-D轴至1-G轴增加内墙及内门。调整W-3轴、W-4轴、W-6轴及W-B轴柱网尺寸,轴线处墙体相应平移,轮廓相应调整;根据施工图深化,1-10轴西移100mm。
2#楼变更内容方面,根据人防需求,一层局部增加战时地下疏散楼梯,一层、二层局部增加人防风井,立面相应调整。一层增加部分网点疏散门宽度,开敞楼梯间均改为封闭楼梯间,部分楼梯间的外窗调整为外门,调整二层部分对应外窗宽度,一层、二层22至26轴交P轴处增加外窗,二层W-3至W-4轴交W-C轴处取消外窗,立面相应调整。一层1/9至12轴交M轴卫生间调整大小和卫生间门位置;调整6至1/9轴交M至P轴平面轮廓,立面相应调整。
根据施工图审查要求,东侧商业网点分隔为两个商业网点,立面相应调整。于一层7轴交K轴及18轴交M轴增加内墙及内门,相应调整7轴交K轴处电井门位置。二层部分体育活动站与一层部分物业管理用房对换,调整后一层16至18轴交C轴外窗调整为疏散门,立面图相应调整,体育活动站及物业管理用房面积均不变。根据结构施工图深化要求,调整W-2至W-7轴及W-B轴柱网尺寸,轴线处墙体相应平移。
