[摘要] 原恒大文化旅游城北区3地块修建性规划出炉。
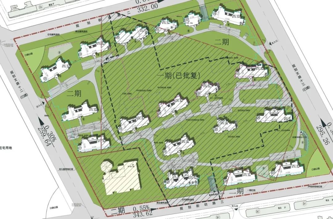
2月23日,从胶州自然资源局获悉,原恒大文化旅游城北区3地块修建性规划出炉,项目位于胶州市九龙街道办事处规划街坊路二以南、规划支路十二以东、规划街坊路三以北、规划支路十三以西。由青岛恒福旅游开发有限公司建设。

项目拟建18栋住宅,其中16栋为高层,2栋为8层洋房,西南侧为3层幼儿园,地块东南角和西北角均规划了口袋公园。
住宅用地总用地面积73049. 97平方米,总建筑面积291145.61平方米。地上建筑面积197464.42平方米,地下建筑面积93681. 19平方米,共1545户,容积率2.7,绿地率35.07%,共2284个机动车停车位,其中地上停车位5个,地下停车位2279个。
二期地上建筑面积99821.54平方米,地下建筑面积43567. 43平方米,共771户,共1097个机动车停车位,其中地上停车位5个,地下停车位1092个。



据悉,青岛恒大文化旅游城现已更名为观澜御府。
