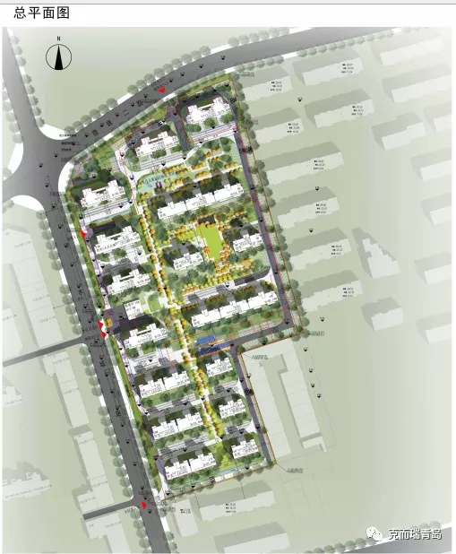
[摘要] 9月22日,海岸万科城新地块规划方案出炉,该项目位于青岛市西海岸新区灵海路北,水城路东。总用地面积4.4万㎡,总建筑面积14.12万㎡
9月22日,海岸万科城新地块规划方案出炉,该项目位于青岛市西海岸新区灵海路北,水城路东。总用地面积4.4万㎡,总建筑面积14.12万㎡,地上建筑面积10.64万㎡,建筑高度71.15m,规划停车位1175个,建筑密度17.05%,绿地率30%,容积率2.4。根据规划,项目将建设10栋8-11F小高层、6栋24-27F高层。

建设单位:青岛万珠置业有限公司
建设项目:海岸万科城14#地块住宅项目
建设地点:青岛西海岸新区灵海路北,水城路东



据CRIC系统显示,9月10日,二批次供地拍卖中,万科2.3亿竞得3125号商住地。3125号地块位于黄岛区灵海路北、水城路东,占地3.47万㎡,容积率2.4,建面7.49万㎡,成交楼板价3055元/㎡,成交总价2.29亿元。
HD2021-3125号宗地设定竞买条件为:1.竞得人、暂定竞得人须在网上土地拍卖竞拍结束后三个工作日内,与隐珠街道办事处签订《无偿建设公服配套设施协议》:
根据新区发展和城市规划建设需要,由乙方自筹资金承建隐珠街道崇文路以西、隐珠二路以北的规划绿地地块的公园,建成后按政府要求办理无偿移交手续。公园需考虑周边居民的多方位使用需求,并依托于周边浓厚教育氛围,差异化打造文化熏陶为主的寓教于乐的公园。公园规划面积不低于8000平方米,投资暂定不低于600元/平方米,具体建设标准与街道办事处另行协商。
竞得人、暂定竞得人须在网上土地拍卖竞拍结束后三个工作日内签订承诺书,配合隐珠街道办事处完成该宗地周边相邻地块拆迁清场。3125号宗地应配建不少于规划住宅建筑面积10%比例的租赁型人才住房8319.36平方米,且不少于208套(间),套型建筑面积以30-50平方米为主。



