[摘要] 作为市北区南部的价值高地,海云庵片区正凭借地铁5号线(在建)的交通红利与老城成熟的商业医疗配套,成为主城置业的新宠。目前片区新房市场呈现“双盘鼎立”格局——国企国信开发的国信和悦与央企中车打造的四方云汇二期,两个项目仅一路之隔,却以截然不同的产品定位展开差异化竞争。
作为市北区南部的价值高地,海云庵片区正凭借地铁5号线(在建)的交通红利与老城成熟的商业医疗配套,成为主城置业的新宠。目前片区新房市场呈现“双盘鼎立”格局——国企国信开发的国信和悦与央企中车打造的四方云汇二期,两个项目仅一路之隔,却以截然不同的产品定位展开差异化竞争。

1位置PK:出行便利VS环境静谧
国信和悦与中车四方云汇二期隔兴隆路相望,中车四方云汇二期位于兴隆路南侧,紧邻地铁5号线,出行便利,但部分房源临近火车道,个别楼座靠近加油站;相较之下,国信和悦的居住环境更为静谧,且地势更高,视野开阔。
2体量PK:小而精VS大而全
国信和悦属于精致型社区,规划有5栋住宅,3栋17层的小高层和2栋高层;中车四方云汇作为百万方城市更新项目的一部分,二期规划13栋住宅,其中8栋高层,5栋小高层。
中车四方云汇二期体量较大,容积率为2.85,楼栋排布较密,部分高层或存在采光与噪音问题;而国信和悦是目前市北在售项目容积率最低的,仅为2.42,居住舒适度更高,尤其适合追求低密居住环境的购房者选择。

国信和悦效果图

中车四方云汇二期效果图
3产品户型PK:高得房率VS多面积段
国信和悦的小高层产品均为一梯一户,且没有连廊,且层高3.1米;户型建面约119㎡-143㎡,独立玄关,还配有家政间。
中车四方云汇二期覆盖从92㎡到143㎡多个面积段;但小高层产品都是大户型,建面约140㎡;建面约92㎡、108㎡的小户型则为高层产品。

中车四方云汇二期140㎡户型图

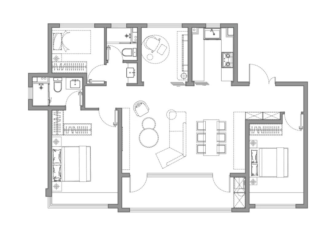
国信和悦143㎡户型图
两者相较,产品上的差异性较大。单向对比小高层产品,国信和悦的选择性更大,得房率更高,119㎡的实际利用率出色,南北双阳台,元宝户型,南向面宽约11.3米,合理的设计将有效使用面积扩大至97%。

国信和悦本身体量不大,整个社区仅300户,119㎡这样的宝藏户型数量有限。
4价格PK:国信和悦小高层性价比高
中车四方云汇二期的小高层目前尚未开盘,售楼处释放的产品均价约为25000元/㎡-26000元/㎡;高层产品均价约20000元/㎡,总价约200万左右,其高层产品户型小、总价低更适合刚需置业群体。
相较之下,国信和悦小高层的价格优势较为突出,其小高层的均价约21000元/㎡-22500元/㎡,总价250万左右就可以实现优质改善,更适合追求一步到位与舒适度的置业群体。
5配套PK:基础满足VS全能大城
国信和悦虽然社区精致,但仍配建有一所幼儿园及约2050㎡的体育运动中心、四点半学堂等。
中车四方云汇园区内配建两所幼儿园(含四方幼儿园)、一所小学、一所中学(二实验分校);园区内约有10万㎡商业配套及多个主题公园,机车公园、四方公园等均在项目之内;其园区内配建的体育综合体有赛事级游泳中心、篮球馆、羽毛球馆等丰富配套。

中车四方云汇赛事级泳池
在配套上,中车四方云汇大盘的优势突出,但一路之隔,国信和悦也可共享利好。

作为青岛城市文脉的发源地,海云庵商圈正焕发新的生机。国信和悦与中车四方云汇二期凭借区位优势,共享1公里海云庵商圈、2公里悦荟MALL商圈、3公里城市级商圈的三重商业辐射。这里不仅坐拥便捷的现代生活配套,更承载着五百年的海云庵文化底蕴。
该区域作为青岛传统居住区,正在迎来新一轮的城市更新。两个项目所处的“上四方”区域,既保留了老城区特有的市井烟火气,又通过现代化社区建设提升了居住品质。这一兼具历史底蕴和发展潜力的区域,正成为主城置业的新热点。



