青岛地区的房地产行业门户

首页 | 买房优惠 | 免费看房车 | 房产新闻 | 楼市资讯 | 二手房 | 租房 | 家居 | 业主论坛

地图
青岛新闻网房产>青岛新房>城阳区>青岛正商红河谷
青岛正商红河谷

售完 现房 扫描到手机

纠错

862615次浏览    条点评    最后更新:2016年10月18日

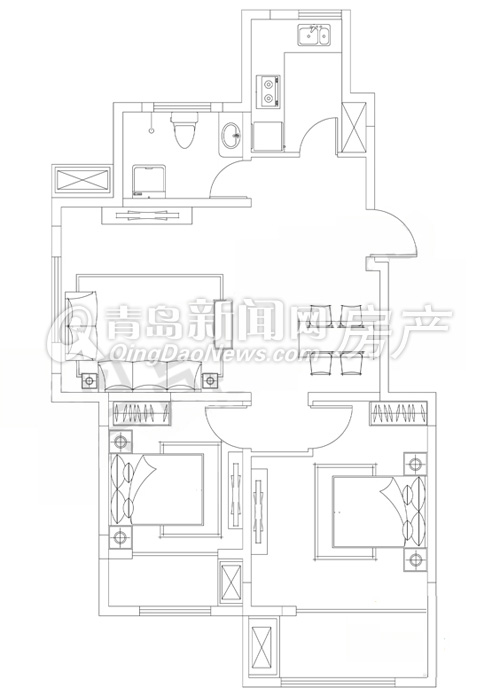
青岛正商红河谷V2户型2室2厅1卫1厨80.88㎡(仅供参考,以售楼处为准)
[自动播放:20秒60秒停止
在线咨询 看房约车 微信关注 返回顶部